Aumento de avícula

CD3WD Project

Back to Home Page of CD3WD Project or Back to list of CD3WD Publications


Home - English - French - German - Italian - Portuguese - Spanish
 
                             Avícula Aumento
 
CHOCADEIRA COM CURRAL PARA 200 PINTINHOS
 
Esta chocadeira de pintinho (veja Figura 1) é dobrado para acesso fácil encurralar e chocadeira.

fg1x253.gif (600x600)


A chocadeira foi prosperamente usada no Equador e em outro lugar elevar grelhas
para uma colheita de dinheiro.
 
A chocadeira está aquecida por uma lâmpada incandescente elétrica regular, colocada debaixo da chocadeira,
chão. Dependendo da elevação de temperatura requereram, a potência em watts da lâmpada incandescente
tenha que ser escolhida através de experimentação. O chão de metal e telhado previnem
predadores como ratos de entrar na chocadeira. Se energia elétrica não é
disponível, uma escavação pode ser feita para uma lanterna. Esteja seguro a lanterna tem
ventilação adequado.
 
Ferramentas de                              e Materiais
 
Ferramentas de carpintaria pequenas
Pano de hardware 1.2 x 2m (4 ' x 6 ' 6 3/4 "), 2 pedaços dos que este tamanho precisou.
Cobertura de alumínio:
    1 pedaço: 1.2m x 1.6m (4 ' x 5'3 ")
    1 pedaço: 1.2m x 1.7m (4 ' x 5'7 ")
Wood, aproximadamente 30cm x 2cm x 20m (1 ' x 3/4 " x 65'8 ")
Acere vara 1cm (3/8 ") diâmetro x 3.2m (10 ' 6 ")
4 dobradiças aproximadamente 8cm (3 1/8 ") muito tempo
Woodscrews para dobradiças
2 baldes limpam areia seca
Unhas, tachas, grampos,
 
Fonte:
 
Kreps, George. Artigo em Missões Rurais, #122, Missões Agrícolas, Inc.,
 
CHOCADEIRA DE ABAJUR DE QUEROSENE PARA 75 A 100 PINTINHOS
 
Esta chocadeira foi usada por mais de 300 fazendeiros na Nigéria oriental.
 
Pregue pernas para apoiar (veja Figura 2). Se

fg2x254.gif (218x437)


desejada, faça a altura do
chocadeira ajustável perfurando uma fila
de buracos em cada perna e trancando
as pernas para os lados.
 
Ajunte e pregue apoio de topo cerca 1cm (3/8 ") debaixo da extremidade superior dos lados
(veja Figura 3).

fg3x254.gif (437x437)


 
Faça o topo de plywood, metal de folha, ou tábuas de madeira de forma que os ajustes de topo
dentro da armação e restos nas grades de apoio (veja Figura 4). O buraco no

fg4x254.gif (393x393)


centro do topo é para ventilação. Uma cobertura de metal oscilante regula o tamanho de
a abertura.
 
Um arbusto ou abajur de furacão é colocado dentro de malha de arame ou uma lata picotada possa
proteja os pintinhos e ajudar radiem o calor (veja Figura 5).

fg5x255.gif (200x600)


 
Podem ser alteradas as dimensões cedidas as ilustrações ligeiramente para usar disponível
materiais.
 
Deveriam ser limpados os pavios das lanternas diário para consumir menos fuligem.
 
Fonte:
 
W. H. McCluskey, Departamento de Ciência de Avícula, Oregon Estado Universidade, Corvallis.
 
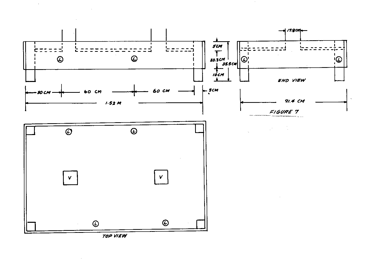
CHOCADEIRA PARA 300 PINTINHOS
 
Esta chocadeira (veja Figura 6) é semelhante às outras duas chocadeiras. Pode ser usado

fg6x255.gif (437x437)


com lanternas ou lâmpadas incandescentes elétricas. Se lanternas são usadas, os pavios deles/delas,
deveria ser limpada diário. Detalhes de construção são determinados em Figura 7.

fg7x256.gif (400x600)


 
Fonte:
 
Rolha, W.W. " Chocadeira para 300 Pintinhos ". Delhi novo: Cooperação Técnica norte-americana
Missão para a Índia. (Mimeographed).
 
 BAMBOO AVÍCULA CASA
 
Esta casa de avícula de bambu tem um telhado de sapé e paredes de sarrafo para prover bem
ventilação. O chão de sarrafo elevado mantém galinhas limpam e saudável enquanto o
captura de ovo e alimenta cochos simplificam manutenção. Foi prosperamente usado dentro
a Filipinas e Libéria.
 
Ferramentas de                               e Materiais
 
Bambu
Unhas
Materiais colmando
Ferramentas pequenas
 
Casa
 
A casa é construída em uma armação de postes pequenos, com postes de chão elevaram aproximadamente 1m (3 ')
do chão. (Veja seção em construção com bambu, pág. 302.) O chão
postes estão cobertos com talos de bambu grandes, divida em tiras 38mm (1 1/2 ") largo,
espaçada 38mm (1 1/2 ") separadamente. Chãos assim construiu tenha várias vantagens: melhor
ventilação, nenhum problema de lixo mofento molhado durante razão chuvosa ou seca lixo pardo
durante estação seca; droppings caem entre canas fendidas para fundamente longe de
galinhas. Isto elimina parasitas e doenças passadas de galinha a galinha normalmente
por droppings que permanece morno e úmido em lixo. Porém, foi
sugeriu que espaçamento largo de chão e sarrafo de parede poderia convidar marauders como
doninhas e cobras.
 
Metal protege em todos os postes de apoio manterá ratos e outras pestes de
escalando (veja Figura 1a). Esteja seguro você não deixa uma enxada inadvertidamente ou outro

fg1x257.gif (540x540)


ferramenta que apóia contra a casa, ou os ratos escalarão isso. (Nota: Um grão de VITA
projeto de armazenamento em República africana Central teve resultados protegendo bom
silo-não avícula casa-com
uma faixa plana de metal
[Figura 1b] isso simplesmente é
embrulhada ao redor de cada silo
apoio. Este tipo de guarda é
mais barato e mais fácil instalar
e mantém que os chamejaram
colarinho. Faça o guarda aproximadamente
25cm largo e aproximadamente 20 cm
do chão. Você pode
tenha que experimentar um pouco para
emparelhe o tamanho e colocação
do guarda para o tamanho e
habilidade escalando dos ratos em
seu bairro.)
 
São feitas paredes de tiras verticais de bambu 38mm (1 1/2 ") largo, espaçou 6cm para
8cm (2 1/2 " a 3 ") separadamente. Isto também permite amplo ventilação, precisado fornecer,
oxigênio para as galinhas e permitir evaporação de umidade de excesso produzida dentro
o droppings. Nos trópicos o problema é manter galinhas esfrie, não morno.
Usando um dosou ou casa de avícula apertado-cercada com um chão sólido os manteria
muito morno e resulta em produção abaixada e aumentou problemas respiratórios.
Obscureça em cima de e ao redor estas casas são muito importantes. Se o chão ao redor do
casas não estão sombreadas, calor saltará nas casas.
 
Telhado
 
O telhado tem que proteger as galinhas do tempo. Em Libéria sapé cobertura
mantém os pássaros esfriam, mas deve ser substituído mais freqüentemente que mais outro
materiais. Desde que é barato e prontamente disponível ao fazendeiro pequeno ou rural
família, será usado provável. Alumínio que reflete o calor do sol
e amiantos, um isolador eficiente, são materiais de cobertura desejáveis nos trópicos.
Zinco que é usado para telhar casas na Libéria geralmente é indesejável para galinha
casas porque é condutor eficiente de calor.
 
Qualquer o material de cobertura o telhado tem que ter um penda de 1m (3 ') em tudo
lados para impedir para chuva de soprar dentro da casa. Pode ser desejável se inclinar
o penda para o chão.
 
Cevadores
 
São feitos cevadores e waterers de 10cm a 12.5cm (4 " a 5 ") bambu de diâmetro
do comprimento desejado (veja Figura 2). Um nodo ou junta devem ser partidas intato em cada

fg2x258.gif (600x600)


fim da seção de bambu para manter o alimento ou molhar dentro. Uma seção 7.5cm a 10cm
(3 " a 4 ") largo ao redor meio o
circunferência do bambu,
com exceção de 7.5cm (3 ") seções em
os fins, é removida para fazer um
tipo de cocho. Todos os nodos entre
os fins são afastados. Estes
cevadores devem ser firmados ao
funde, os impedir rolar.
 
Os cevadores são firmados o
fora das paredes aproximadamente 15cm
(6 ") sobre nível de chão. As galinhas
coloque as cabeças deles/delas pelo
bambu tira alimentar ou beber,
espaço de chão assim conservando para
galinhas adicionais.
 
 Nests
 
Os ninhos de demonstração são 38cm (15 ") longo, 30cm (12 ") largo, e 35.5cm (14 ")
alto (veja Figura 3). As tiras usadas no chão do ninho são aproximadamente 13mm
(1/2 ") largo, espaçou 13mm (1/2 ") separadamente, e deve ser muito liso. O chão se inclina
13mm (1/2 ") de frente para atrás, de forma que quando os ovos são botados que eles rolarão
a parte de trás do ninho. Uma abertura 5cm (2 ") alto à parte de trás do ninho permite
os ovos para rolar fora do ninho em uma captura de ovo (veja Figura 1). Este tipo de

fg3x259.gif (600x600)


ninho resulta em ovos de limpador e menos ovos quebrados. Também rende qualidade melhor
ovos porque eles começam a esfriar assim que eles rolem fora do ninho. Além disso,
os ovos estão fora do ninho onde incita comendo galinhas não os pode localizar. Colocando
a captura de ovo assim protrae fora da parede da casa permite os ovos para ser
juntada de fora. Colocando os ninhos 1 metro (3 ') sobre as conservas de chão
espaço de chão e permite colocar galinhas mais se deitando na casa se deitando. Um
ninho é posto dentro para todo cinco galinhas.
 
Também são construídos ninhos de bambu fendido para desobstruído pondo casas,
ventilação. Ninhos de madeira convencionais estão mais quentes; isto pode fazer galinhas botar ovos
no chão em vez de nos ninhos. Isto significa ovos mais sujos, mais quebrado,
ovos, e mais probabilidade das galinhas que comem os ovos quebrados. O único modo para
cure uma galinha de comer ovos uma vez o hábito é formada é a matar. Além disso, como
as galinhas entram nos ninhos que eles sentam em ovos previamente se deitados por outras galinhas, enquanto mantendo
eles morno. A qualidade de ovos deteriora muito rápido debaixo destas condições.
 
Fonte:
 
USAID, Monrovia, Libéria, descrita em OTS Informação Equipamento, vol,. 1, não. 5, maio,
1961.
 
FÓRMULAS DE ALIMENTO DE AVÍCULA
 
 
Ingredientes de      --Porcentagem de Ceylon           requereu para Camadas
 
Sorgo                                                   42.0
Farelo de trigo de arroz                                                 19.5
Pesque refeição                                                  8.5
Refeição de coco                                              18.5
Gingelly (indicum de sesamus) bolo                    2.0
COWPEAS                                                    3.0
Concha fricciona                                                 6.5
                                                      0.5 salgado
 
                      TOTAL                             100.5
                                           ----------------------------------
Somada por 100.5 kg:
Potássio Iodide (g)                                       0.145
Cloreto de Choline (21.7%) (g)                              540
 
 
Ingredientes de      --Porcentagem de Congo            requereu para Camadas
 
Milho ground                                             20.0
Millet, chão                                            18.0
Arroz, descasque, chão                                        10.0
Pesque refeição                                                  4.0
Refeição de carne                                                  5.0
Groundnut bolo refeição                                       25.0
Refeição de Lucerne                                              12.0
Fosfato de Dicalcium                                        2.0
Ostra descasca                                              3.0
                                                      1.0 salgado
 
                      TOTAL                             100.0
 
 
Ingredientes de      --Porcentagem de Uruguay          requereu para Camadas
 
Moida milho                                              40.0
Moida trigo                                               5.0
Sorgo                                                    3.0
Moida cevada                                             20.0
Farelo de trigo                                                      10.0
Refeição de carne                                                  7.0
Moida bolo de girassol                                     10.0
Ostra descasca                                              4.0
                                                      1.0 salgado
 
                      TOTAL                             100.0
 
 
Compilada por Harlan Attfield, de Avícula que Alimenta dentro Tropical e Subtropical,
Países, Comida e Organização de Agricultura dos Nações Unidas, Roma.
 

CD3WD Project Donate